Строительство индивидуальных малоэтажных жилых домов.
Мы открыты с 9:00 до 18:00
Напишите нам
Адрес: РМ, г.о. Саранск, с. Зыково
Сроки строительства: сентябрь-декабрь 2017 г.
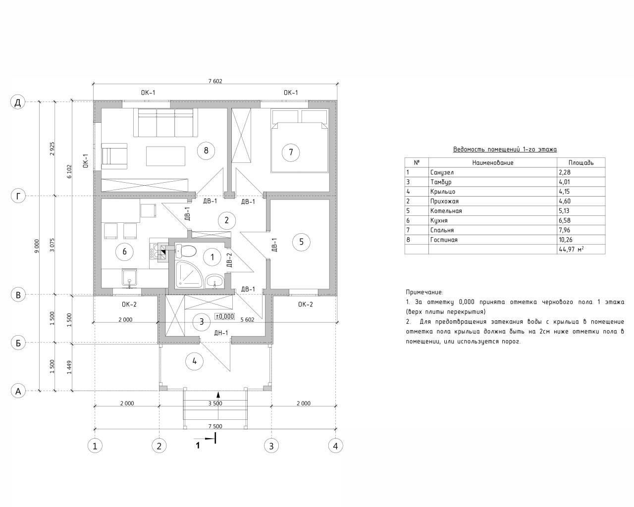
Проект: АС-19/ДО-42,1/17
Наш сайт использует файлы cookie для обеспечения удобства просмотра и соответствующую информацию. Прежде чем продолжить использование нашего сайта, вы соглашаетесь и принимаете нашу Политика использования файлов cookies.