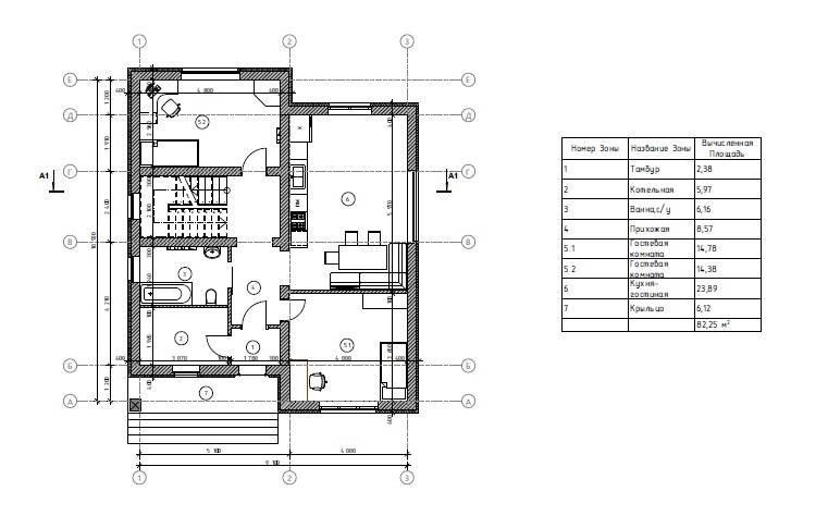
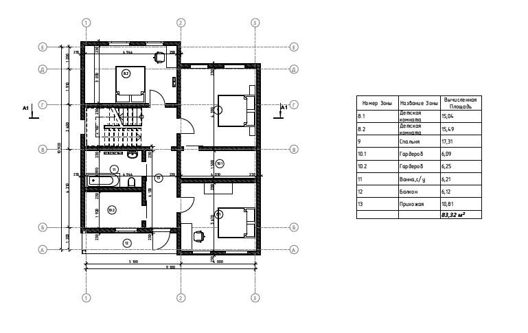
Компания «Первая усадьба» завершила разработку проекта двухэтажного дома общей площадью 165,6 м2 в селе Новотроицк Республики Мордовия.

Проектная документация этого здания был разработана нашими специалистами с учетом всех требований и пожеланий заказчика и включает подробную планировку строения и описание его ключевых параметров.

Данная постройка представляет собой двухэтажное сооружение (второй этаж - мансардный), возведенное на монолитном ростверке. Первый этаж сложен из газоблока и оформлен декоративной штукатуркой, второй является конструкцией из деревянных элементов, обшитых металлическим сайдингом. Кровля покрыта металлочерепицей.

В качестве защиты от неблагоприятных воздействий используются современные гидро-и пароизоляционные материалы и утеплители.

Благодаря применению вышеперечисленных материалов, а также соблюдению всех требований технологии дом полностью соответствует нормам пожарной, экологической и санитарно-гигиенической безопасности.

Мы учли все пожелания заказчика, спроектировав здание с усовершенствованной планировкой и дополнительными конструктивными элементами.

';